Almacenamiento energético: la mejora de la calidad de la red eléctrica en República Checa con el proyecto ‘Unanov’

Almacenamiento energético: la mejora de la calidad de la red eléctrica en República Checa con el proyecto ‘Unanov’.

La instalación diseñada por Cegasa Energía, equipada con baterías de litio de refrigeración líquida y sistemas avanzados de control, refuerza la integración de las energías renovables y marca un paso decisivo hacia una red más eficiente y segura en el país.

En la actualidad, República Checa se encuentra en un proceso de actualización y transición de la red eléctrica, así como de sus fuentes de generación energética, con el objetivo de reducir la generación basada en el consumo de carbón. Una transición basada en la incorporación de nuevas fuentes de energía y de sistemas que aseguren la estabilidad de la red, ante la variabilidad de las fuentes de generación renovable. Este nuevo escenario energético ha impulsado a diversas empresas locales a desarrollar proyectos de generación renovable integrados con sistemas de almacenamiento. Entre ellas, Fitcraft Energy ha decidido afrontar este reto de la mano de Cegasa Energía, responsable del diseño de un innovador sistema de almacenamiento con baterías de litio.

 

Un proyecto de referencia
Este proyecto de almacenamiento se encuentra hibridado con una planta fotovoltaica situada en la localidad de Unanov, al sur de la República Checa. El objetivo principal del sistema desarrollado por Cegasa Energía, es su integración con la planta fotovoltaica, aportando capacidad de regulación de frecuencia (aFRR - Automatic Frequency Restoration Reserve).

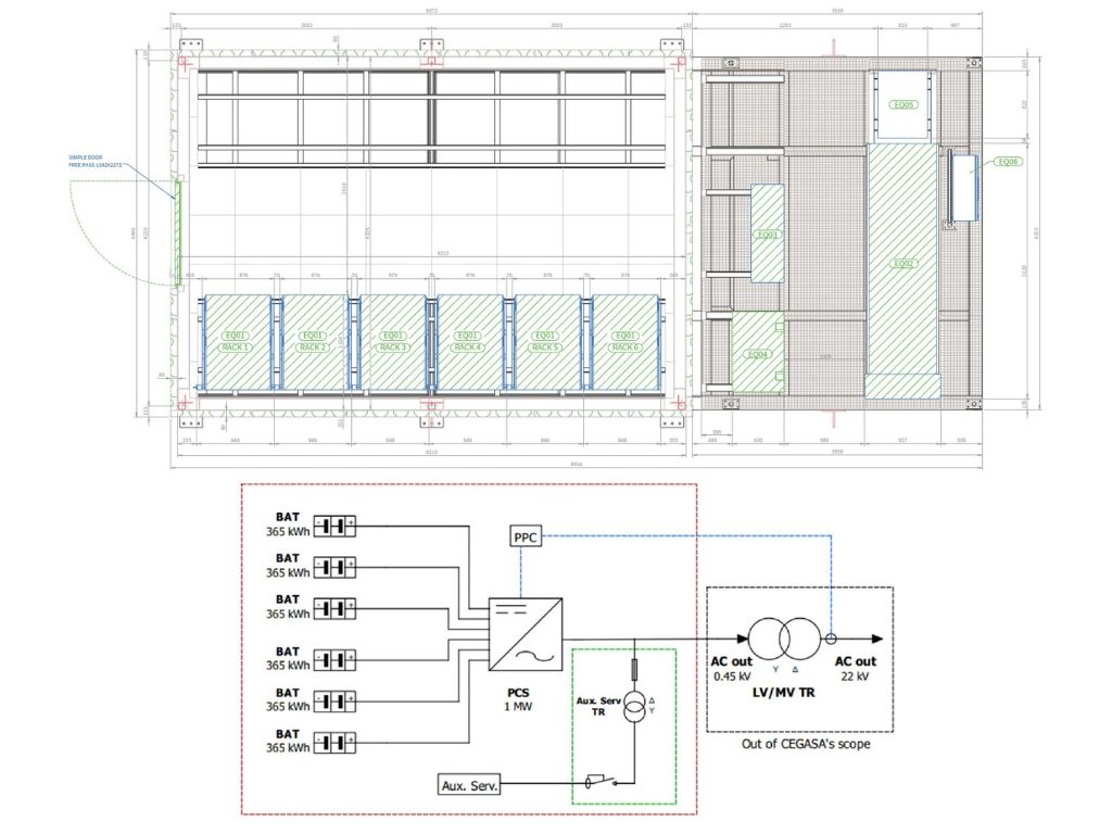
Para alcanzar esta funcionalidad, Cegasa ha diseñado un sistema basado en una estructura autoportante, que integra los siguientes componentes principales:

  • Sala de Batería
  • Sistema contra incendios
  • Sistema de refrigeración líquida
  • Convertidor (PCS) 
  • Control (ECS - PPC)

La sala de baterías proporciona un entorno controlado y seguro, donde se alojan seis racks de batería de refrigeración líquida, con una capacidad total de 2,2MWh y un rango de tensión comprendido entre 1019 y 1300Vdc. Tal como se muestra en el plano adjunto, se ha previsto el espacio necesario para incorporar otro sistema de baterías idéntico al instalado, lo que permitiría duplicar la capacidad de almacenamiento energético del proyecto.

La sala cuenta con un pasillo central que facilita las labores de mantenimiento y sustitución de módulos de batería en un entorno protegido, sin verse afectado por las condiciones meteorológicas del exterior. Además, se ha integrado un sistema de detección y extinción de incendios para reforzar la seguridad, basado en detectores ópticos y con aerosol como agente extintor.

Dado que los módulos de batería son de refrigeración líquida, se ha implementado un sistema de refrigeración diseñado para garantizar su funcionamiento óptimo según el caso de uso y las condiciones climáticas definidas en el proyecto.

El sistema electrónico que convierte la energía almacenada en la batería en energía eléctrica de distribución y que gestiona a su vez la carga de la misma, corresponde al modelo Ingecon Sunstorage Power – Serie B, con un valor de potencia asignado de 1,17 MW. El PCS dispone de seis entradas de corriente continua (DC), cada una protegida mediante fusibles, para la conexión individual de los racks. En el lado de la corriente alterna, el sistema es de 450 Vac, que se conectan a un transformador elevador para permitir que el proyecto pueda aportar las funcionalidades definidas a la línea de media tensión. 

El sistema de control se divide en dos subsistemas que operan de forma paralela e independiente. El primero de ellos es el ECS (Extended Control System), desarrollado por Cegasa Energía, encargado de monitorizar todos los sistemas auxiliares del proyecto, entre ellos el sistema contraincendios, el sistema de refrigeración y los servicios auxiliares. El ECS proporciona un nivel de control que garantiza el correcto funcionamiento de todos los sistemas auxiliares, permitiendo optimizar los periodos de mantenimiento preventivo y facilitar el análisis remoto en caso de fallo. Por otra parte, el sistema PPC (Power Plant Controller), desarrollado por Ingeteam, aporta las funcionalidades necesarias para garantizar el cumplimiento normativo y grid code aplicable en República Checa.

 

Reto y futuro del proyecto
Cegasa Energía ha colaborado estrechamente con Fitcraft Energy en las siguientes fases:

  • Diseño de la instalación eléctrica
  • Ingeniería de detalle de obra civil
  • Cumplimiento normativo (Grid Code)
  • Protocolos de puesta en marcha y mantenimiento
  • Formación a personal local para tener capacidad de mantenimiento y reparación

Aunque el proyecto está diseñado para participar en el mercado de frecuencia a través de la función aFRR (Automatic Frequency Restoration Reserve), se ha concebido que esté también preparado para ampliaciones tanto en de energía como de funcionalidad, en función de las necesidades del mercado energético checo. El power conversion system (PCS) ofrece otras funcionalidades como:

  • Soportar huecos de tensión
  • Control de tensión
  • Generación de potencia reactiva
  • Posibilidad de funcionar en redes con bajo SCR
Artículo escrito por:
Cegasa Energía